ビルト不動産

お気に入り物件(0)

SCROLL

富山市吉作
5LDK
店舗付住宅

21,700,000

外観

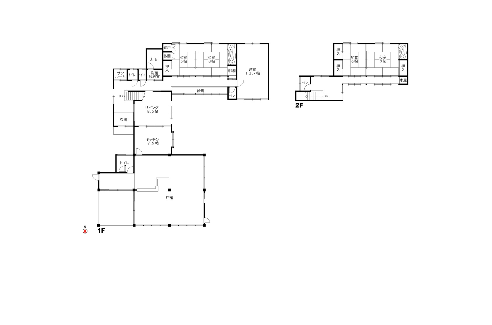
間取/区画図

駐車場

外観

玄関

内装

キッチン

トイレ

洗面

トイレ

内装

和室

洋室

内装

トイレ

内装

和室

和室

内装

内装

内装

内装

内装

内装

内装

内装

内装

玄関

その他画像 その他

この物件に関するお問い合わせ

お電話でのお問い合わせはこちら

0120-984-211

営業時間:平日 9:00~18:00 / 土日祝 9:00~17:00

定休日:水曜・年末年始

特徴

店舗スペースを備えたゆとりある5LDKの間取り。キッチン、トイレは令和7年12月にリフォーム済で快適さと清潔感を兼ね備えた物件。店舗・リビング・縁側のいずれからも見事な日本庭園を眺めることができます。

物件概要

所在地 富山県富山市吉作647番1
交通 あいの風とやま鉄道「呉羽」駅から1200m

吉作北バス停 約250m

周辺環境
間取り/詳細 5LDK
地目 宅地
都市計画 / 用途地域 市街化区域 / 第一種低層住居専用
土地面積 1001.67㎡(303坪)
建物面積 252.38㎡(76.34坪)
私道負担 --
セットバック --
建ぺい率 / 容積率 50% / 80%
接道 【南】公道 間口:40.2m 幅員:5.3m
【西】公道 間口:3.6m 幅員:7.1m
構造・階数 木造 2階建て
駐車台数 6台
現況 / 引き渡し 空家 / 相談
築年月 1985年10月(築40年)
取引態様 一般媒介
設備・条件 公営水道, プロパンガス, 公営下水, IH(3口), システムキッチン, シャンプードレッサー, エアコン, 専用庭, フローリング, ウォシュレット
情報公開日 2026年02月24日
次回更新予定日 2026年03月10日

備考

外部物置、モルタル外壁、駐車スペース6〜7台分 ※西側道路融雪装置あり

0120-984-211

営業時間:平日 9:00~18:00 / 土日祝 9:00~17:00

定休日:水曜・年末年始

アクセス

〒930-0142

富山県富山市吉作647番1

0120-984-211

営業時間:平日 9:00~18:00 / 土日祝 9:00~17:00

定休日:水曜・年末年始

その他の物件一覧