ビルト不動産

お気に入り物件(0)

SCROLL

富山市茶屋町
5LDK
中古戸建

13,200,000

外観

間取/区画図

キッチン

和室

洗面

内装

トイレ

風呂

和室

内装

内装

洋室

和室

玄関

駐車場

周辺 【小学校】富山市立呉羽小学校まで1050m

周辺 【中学校】富山市立呉羽中学校まで1110m

周辺 【幼稚園】まどか幼稚園まで1000m

周辺 【保育園】呉羽保育所まで970m

周辺 【郵便局】富山富田郵便局まで80m

周辺 【コンビニエンスストア】ファミリーマート 富山茶屋町店まで190m

周辺 【スーパー】albis(アルビス) 呉羽東店まで520m

周辺 【ドラッグストア】クスリのアオキ茶屋町店まで430m

周辺 【内科】岩城内科医院まで530m

周辺 【図書館】富山県立図書館まで670m

この物件に関するお問い合わせ

お電話でのお問い合わせはこちら

0120-984-211

営業時間:平日 9:00~18:00 / 土日祝 9:00~17:00

定休日:水曜・年末年始

特徴

旧8号線近くの好立地で通勤に便利。周辺には商業施設も充実しており生活環境も良好。室内は内装リフォーム済で快適に再生されており、広々とした16.5帖のLDKはご家族がゆったりとくつろげる開放的な空間。

物件概要

所在地 富山県富山市茶屋町558番地1
交通 あいの風とやま鉄道「呉羽」駅から1600m

呉羽山公園バス停 約470m

周辺環境

【小学校】富山市立呉羽小学校まで1050m

【中学校】富山市立呉羽中学校まで1110m

【幼稚園】まどか幼稚園まで1000m

【保育園】呉羽保育所まで970m

【郵便局】富山富田郵便局まで80m

【コンビニエンスストア】ファミリーマート 富山茶屋町店まで190m

【スーパー】albis(アルビス) 呉羽東店まで520m

【ドラッグストア】クスリのアオキ茶屋町店まで430m

【内科】岩城内科医院まで530m

【図書館】富山県立図書館まで670m

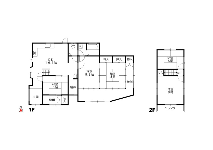
間取り/詳細 5LDK
LDK16.5畳 / 和室6.0畳×2 / 和室8.0畳 / 洋室8.3畳 / 洋室9.0畳
地目 宅地
都市計画 / 用途地域 市街化区域 / 第一種中高層住居専用
土地面積 227.83㎡(68.91坪)
建物面積 136.13㎡(41.17坪)
私道負担 --
セットバック --
建ぺい率 / 容積率 60% / 200%
接道 【北】公道 間口:18.5m 幅員:4.6m
構造・階数 木造 2階建て
駐車台数 1台
現況 / 引き渡し 空家 / 相談
築年月 1972年12月(築53年)
リフォーム履歴

【内装】2026年01月 壁, 床 IHグリルレンジ交換、風呂ユニット一部交換、洗面台交換、2階部屋扉交換、畳表替え、インターホン交換

取引態様 一般媒介
設備・条件 公営水道, 公営下水, IH(2口), シャンプードレッサー, エアコン, 床下収納, WINクローゼット, オール電化
情報公開日 2026年05月27日
次回更新予定日 2026年06月10日

備考

フローリング、外部物置、トタン外壁、インナーガレージ1台分

0120-984-211

営業時間:平日 9:00~18:00 / 土日祝 9:00~17:00

定休日:水曜・年末年始

アクセス

〒930-0115

富山県富山市茶屋町558番地1

0120-984-211

営業時間:平日 9:00~18:00 / 土日祝 9:00~17:00

定休日:水曜・年末年始

その他の物件一覧