ビルト不動産

お気に入り物件(0)

SCROLL

富山市呉羽町(呉羽丸富町)
3SLDK
中古戸建

15,980,000

外観

間取/区画図

キッチン

設備

風呂

内装

トイレ

洗面

和室

玄関

内装

洋室

洋室

洋室

内装

玄関

内装

和室

内装

設備

外観

周辺 【小学校】富山市立呉羽小学校まで740m

周辺 【中学校】富山市立呉羽中学校まで1120m

周辺 【幼稚園】富山市立呉羽幼稚園まで900m

周辺 【保育園】呉羽保育所まで450m

周辺 【郵便局】富山富田郵便局まで600m

周辺 【コンビニエンスストア】ファミリーマート 富山茶屋町店まで610m

周辺 【スーパー】albis(アルビス) 呉羽東店まで530m

周辺 【ショッピングセンター】アリスショッピングセンターまで3000m

この物件に関するお問い合わせ

お電話でのお問い合わせはこちら

0120-984-211

営業時間:平日 9:00~18:00 / 土日祝 9:00~17:00

定休日:水曜・年末年始

特徴

富山市街へも高岡方面へもアクセスしやすい立地です。商業施設も程よい距離に点在しているので住環境が充実しています。

物件概要

所在地 富山県富山市呉羽町呉羽丸富町
交通 あいの風とやま鉄道「呉羽」駅から1040m

コミュニティバス 呉羽苑前 約140m

周辺環境

【小学校】富山市立呉羽小学校まで740m

【中学校】富山市立呉羽中学校まで1120m

【幼稚園】富山市立呉羽幼稚園まで900m

【保育園】呉羽保育所まで450m

【郵便局】富山富田郵便局まで600m

【コンビニエンスストア】ファミリーマート 富山茶屋町店まで610m

【スーパー】albis(アルビス) 呉羽東店まで530m

【ショッピングセンター】アリスショッピングセンターまで3000m

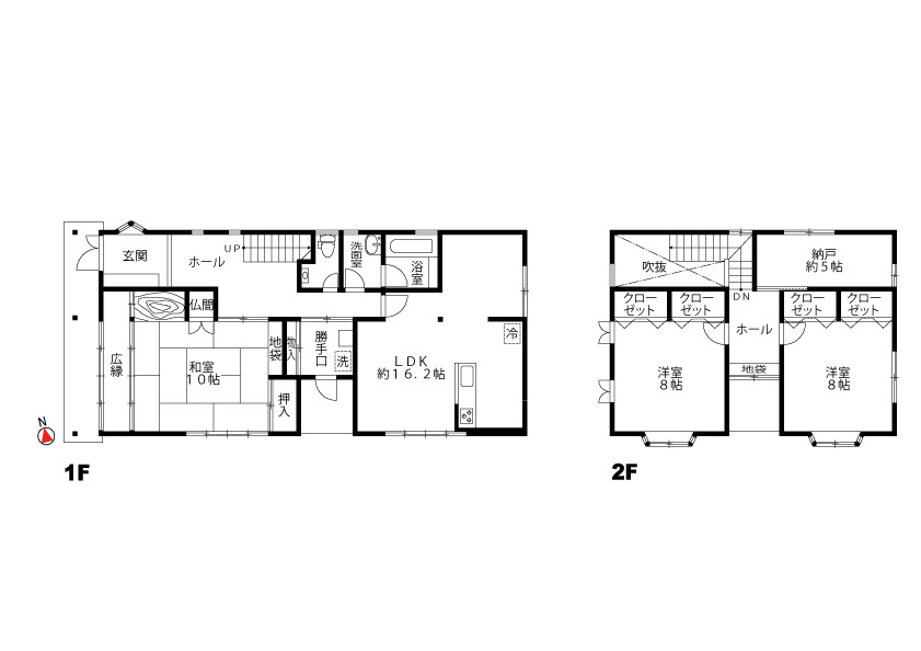
間取り/詳細 3SLDK
LDK16.2畳 / 和室10.0畳 / 洋室8.0畳×2 / S5.0畳
地目 宅地
都市計画 / 用途地域 市街化区域 / 第一種中高層住居専用
土地面積 211.16㎡(63.87坪)
建物面積 131.65㎡(39.82坪)
私道負担 --
セットバック --
建ぺい率 / 容積率 60% / 200%
接道 【西】公道 間口:8.5m 幅員:5.1m
構造・階数 木造 2階建て
駐車台数 2台
現況 / 引き渡し 空家 / 即時
築年月 1992年11月(築33年)
リフォーム履歴

【水回り】2025年11月 キッチン, 浴室, トイレ 【内装】2025年11月 壁, 床 洗面化粧台新品交換、障子・襖張替、畳表替、トイレ・洗面室CF張替、LDKフロアタイル張替、全室照明器具(LE 【外装】2025年11月 外壁 外壁塗装

取引態様 専任媒介
設備・条件 公営水道, 公営下水, IH(3口), システムキッチン, 追焚機能, シャンプードレッサー, 出窓, TVドアホン, ウォシュレット, オール電化, 浴室乾燥機
情報公開日 2026年05月01日
次回更新予定日 2026年05月15日

備考

浴室暖房、駐車スペース2台分

0120-984-211

営業時間:平日 9:00~18:00 / 土日祝 9:00~17:00

定休日:水曜・年末年始

アクセス

〒930-0127

富山県富山市呉羽町呉羽丸富町

0120-984-211

営業時間:平日 9:00~18:00 / 土日祝 9:00~17:00

定休日:水曜・年末年始

その他の物件一覧