ビルト不動産

お気に入り物件(0)

SCROLL

砺波市久泉(イーストウイング)
2LDK
アパート

58,000,000

外観

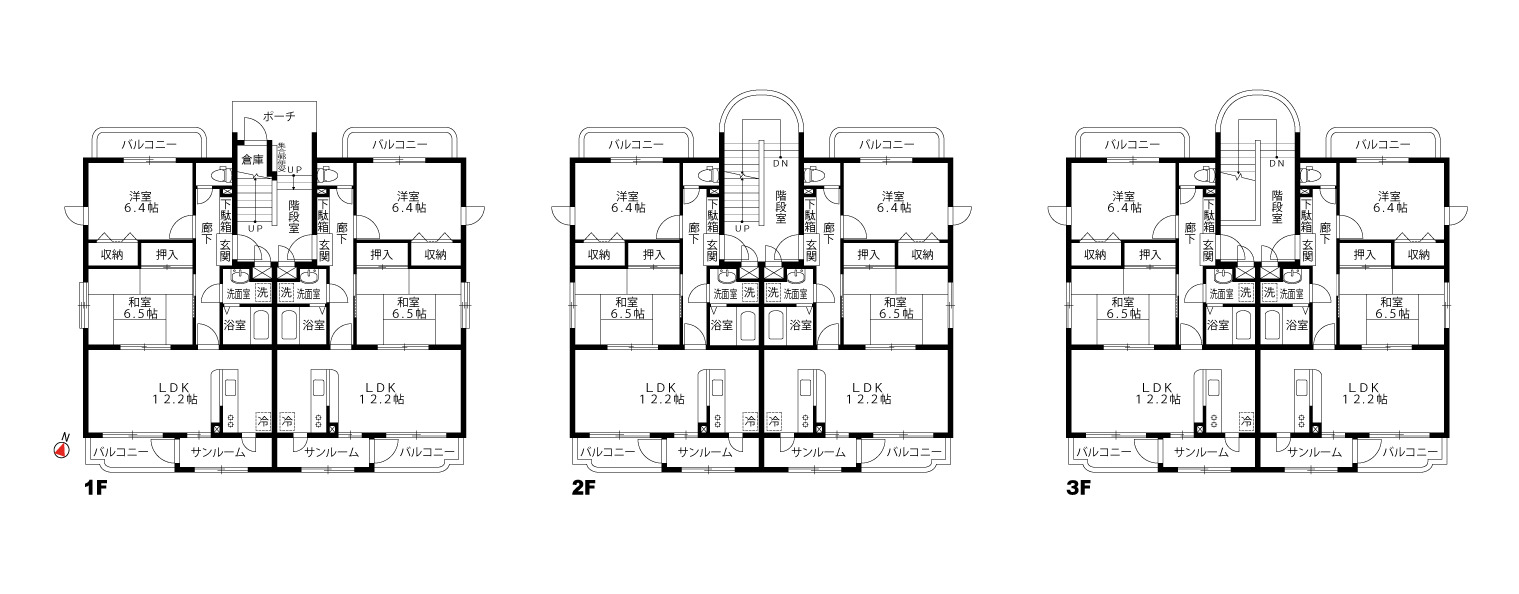
間取/区画図

洋室

洋室

和室

内装

洋室

トイレ

風呂

キッチン

収納

その他画像 その他

洗面

設備 サンルーム

バルコニー

周辺 【小学校】砺波市立庄南小学校まで2220m

周辺 【中学校】砺波市立庄西中学校まで1300m

周辺 【保育園】太田こども園・太田保育所まで640m

周辺 【郵便局】太田郵便局まで560m

周辺 【コンビニエンスストア】ローソン 砺波久泉店まで470m

周辺 【スーパー】albisとなみ店まで3540m

周辺 【ディスカウントショップ】MEGAドン・キホーテUNY砺波店まで3400m

周辺 【ドラッグストア】ドラッグストアコスモス となみ店まで2650m

周辺 【ホームセンター】DCM砺波店まで4180m

周辺 【クリニック】砺波市立太田診療所まで810m

周辺 【総合病院】市立砺波総合病院まで4200m

この物件に関するお問い合わせ

お電話でのお問い合わせはこちら

0120-984-211

営業時間:平日 9:00~18:00 / 土日祝 9:00~17:00

定休日:水曜・年末年始

特徴

RC造の堅牢な建物で、現状満室・表面利回り8.16%を確保しており、空室期間も短く収益の安定性が高い一棟アパートです。住戸は2LDK・サンルーム・バルコニー付。幹線道路へのアクセスや生活利便施設にも近

物件概要

所在地 富山県砺波市久泉14番3、他4筆
交通 JR城端線「砺波」駅から3760m
JR城端線「油田」駅から3920m

加越能バス 太田停 約480m

周辺環境

【小学校】砺波市立庄南小学校まで2220m

【中学校】砺波市立庄西中学校まで1300m

【保育園】太田こども園・太田保育所まで640m

【郵便局】太田郵便局まで560m

【コンビニエンスストア】ローソン 砺波久泉店まで470m

【スーパー】albisとなみ店まで3540m

【ディスカウントショップ】MEGAドン・キホーテUNY砺波店まで3400m

【ドラッグストア】ドラッグストアコスモス となみ店まで2650m

【ホームセンター】DCM砺波店まで4180m

【クリニック】砺波市立太田診療所まで810m

【総合病院】市立砺波総合病院まで4200m

間取り/詳細 2LDK
地目 宅地
都市計画 / 用途地域 非線引区域 / 無指定
土地面積 743.49㎡(224.9坪)
建物面積 377.35㎡(114.14坪)
私道負担 --
セットバック --
建ぺい率 / 容積率 60% / 200%
接道 【北】公道 間口:31.2m 幅員:6.0m
構造・階数 鉄筋コンクリート造 3階建て
現況 / 引き渡し 賃貸中 / 相談
築年月 2005年08月(築20年)
取引態様 専任媒介
設備・条件 公営水道, プロパンガス, 公営下水, バス・トイレ別, シャンプードレッサー, エアコン, 濯機置場有, CATV対応, BS対応, バルコニー, フローリング, インターネット対応, TVドアホン, ウォシュレット, カウンターキッチン
情報公開日 2026年02月18日
次回更新予定日 2026年03月04日

備考

サンルーム、外部物置、敷地内駐車場融雪装置あり(井戸)、駐車スペース11台分 ※入居:6/6室(満室中)2026.1.26時点 ※ガス基地、排水路、ゴミステーション、一部通路は共有部分となります。

0120-984-211

営業時間:平日 9:00~18:00 / 土日祝 9:00~17:00

定休日:水曜・年末年始

アクセス

〒939-1314

富山県砺波市久泉14番3、他4筆

0120-984-211

営業時間:平日 9:00~18:00 / 土日祝 9:00~17:00

定休日:水曜・年末年始

その他の物件一覧