ビルト不動産

お気に入り物件(0)

SCROLL

富山市新庄銀座2丁目(4号棟)
4LDK
新築戸建

33,800,000

外観

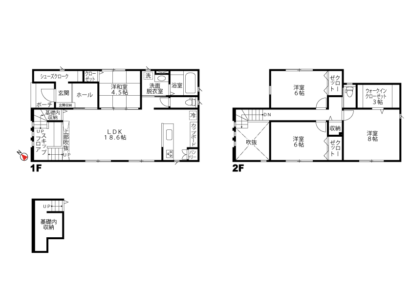
間取/区画図

和室

キッチン

居間

洗面

風呂

トイレ

内装

内装 スキップフロア

内装

洋室

内装

トイレ

洋室

玄関

収納

周辺 【小学校】富山市立新庄北小学校まで140m

周辺 【中学校】富山市立新庄中学校まで3000m

周辺 【保育園】新庄さくら保育園まで130m

周辺 【スーパー】albis(アルビス) 新庄店まで700m

周辺 【コンビニエンスストア】ローソン 富山新庄銀座店まで500m

周辺 【インテリア】ファニチャーパークケースリーまで400m

周辺 【ドラッグストア】クスリのアオキ 五本榎店まで970m

周辺 【内科】島崎クリニックまで970m

周辺 【総合病院】済生会富山病院まで3550m

この物件に関するお問い合わせ

お電話でのお問い合わせはこちら

0120-984-211

営業時間:平日 9:00~18:00 / 土日祝 9:00~17:00

定休日:水曜・年末年始

特徴

タマホーム施工の高品質住宅。視線が抜けるスキップフロアの書斎は集中したい時には静けさを、家族の気配を感じたい時には程よい距離感があります。子どもの遊び場や来客時のおもてなしに使える和室もあります。

物件概要

所在地 富山県富山市新庄銀座2丁目388番の一部
交通 富山地方鉄道本線「越中荏原」駅から2560m

地鉄 鶴ヶ丘バス停 約800m

周辺環境

【小学校】富山市立新庄北小学校まで140m

【中学校】富山市立新庄中学校まで3000m

【保育園】新庄さくら保育園まで130m

【スーパー】albis(アルビス) 新庄店まで700m

【コンビニエンスストア】ローソン 富山新庄銀座店まで500m

【インテリア】ファニチャーパークケースリーまで400m

【ドラッグストア】クスリのアオキ 五本榎店まで970m

【内科】島崎クリニックまで970m

【総合病院】済生会富山病院まで3550m

間取り/詳細 4LDK
LDK18.6畳 / 和室4.5畳 / 洋室6.0畳×2 / 洋室8.0畳
地目 宅地
都市計画 / 用途地域 市街化区域 / 工業
土地面積 191.77㎡(58.01坪)
建物面積 120.06㎡(36.31坪)
私道負担 --
セットバック --
建ぺい率 / 容積率 60% / 200%
接道 【西】公道 間口:10.7m 幅員:6.0m
構造・階数 木造 2階建て
駐車台数 3台
現況 / 引き渡し 空家 / 相談
築年月 2025年12月
取引態様 一般媒介
設備・条件 公営水道, プロパンガス, 公営下水, IH(3口), システムキッチン, 追焚機能, シャンプードレッサー, WINクローゼット, バリアフリー, ウォシュレット, オール電化, カウンターキッチン, 食器洗い乾燥機
情報公開日 2026年03月16日
次回更新予定日 2026年03月30日

備考

全室LED照明、カップボード、スキップフロア、フローリング、駐車スペース3台分 ※前面道路融雪装置あり

0120-984-211

営業時間:平日 9:00~18:00 / 土日祝 9:00~17:00

定休日:水曜・年末年始

アクセス

〒930-0991

富山県富山市新庄銀座2丁目388番の一部

0120-984-211

営業時間:平日 9:00~18:00 / 土日祝 9:00~17:00

定休日:水曜・年末年始

その他の物件一覧